• PROJECTS
  • ABOUT
    • THE PRACTICE
    • PERSONNEL
    • PROCESS
    • PRIVACY POLICY
  • CONTACT
  • Extra Services
    • Visuals & Models
    • Heritage
  • VISUALS
  • RESOURCE
    • Working With an Architect
    • Architect vs Project Home
    • Architect vs Design & Build
    • Sustainable Design in Architecture
    • Passive Solar Design
    • Passive Solar vs Passivhaus
    • Most and Least Sustainable Materials
    • What are 'Green" Building Materials?
    • 'Green' Concrete and 'Green' Steel
    • Designing for Bushfire Attack
    • Most Sustainable Building Timbers
  • Instagram

MIKE EDWARDS

a r c h i t e c t u r e

  • PROJECTS
  • ABOUT
    • THE PRACTICE
    • PERSONNEL
    • PROCESS
    • PRIVACY POLICY
  • CONTACT
  • Extra Services
    • Visuals & Models
    • Heritage
  • VISUALS
  • RESOURCE
    • Working With an Architect
    • Architect vs Project Home
    • Architect vs Design & Build
    • Sustainable Design in Architecture
    • Passive Solar Design
    • Passive Solar vs Passivhaus
    • Most and Least Sustainable Materials
    • What are 'Green" Building Materials?
    • 'Green' Concrete and 'Green' Steel
    • Designing for Bushfire Attack
    • Most Sustainable Building Timbers
  • Instagram

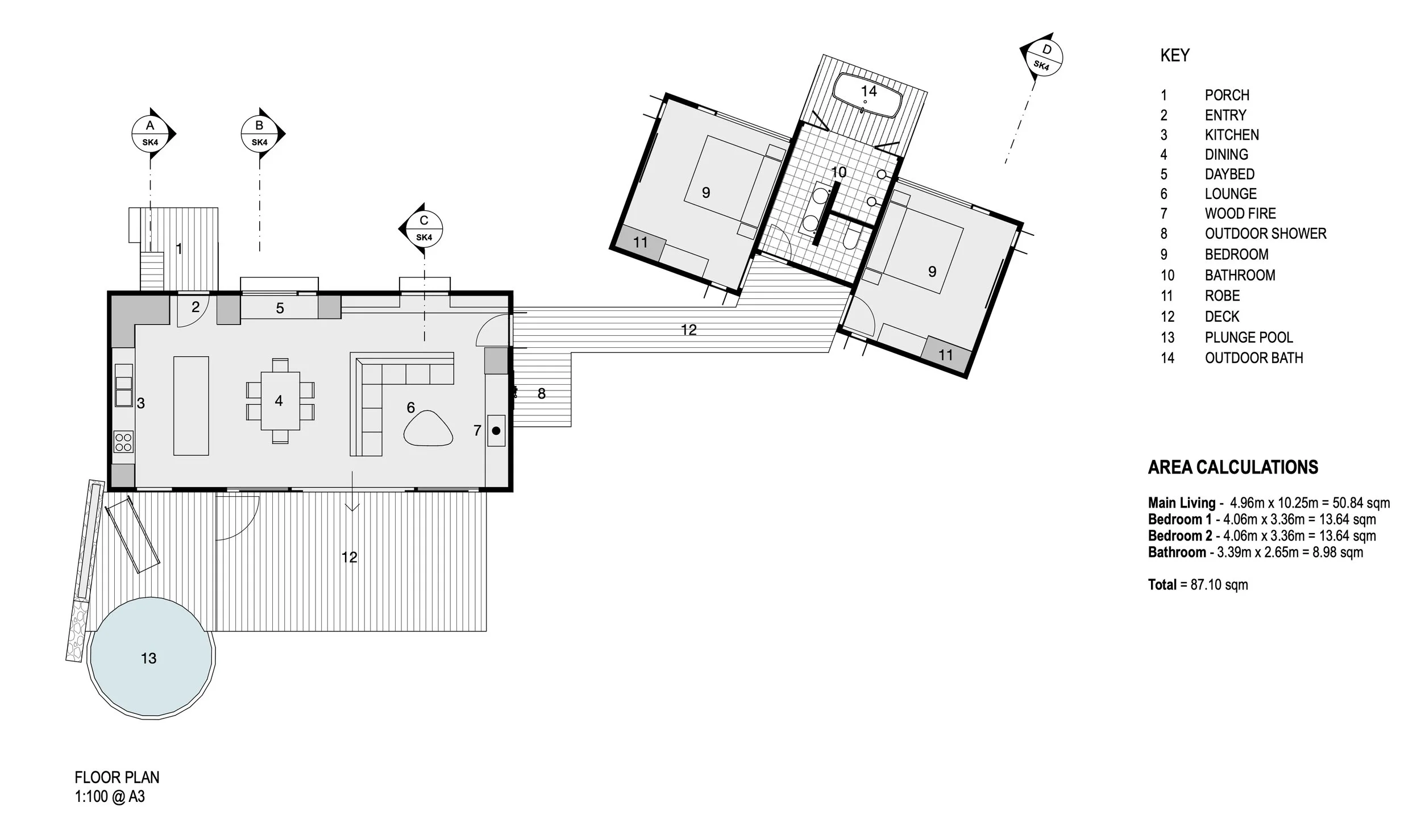
Metricup Eco Chalets

LOCATION: METRICUP, Shire of Busselton, Western Australia

PROJECT TYPE / SERVICES: Residential / 10 Short Stay Rural - Eco Chalets / Partial Architectural Service to completion of Construction Documentation.

FLOOR AREA: 87 square metres - each chalet.

Mike Edwards Architecture was commissioned for a partial architectural service to complete the Construction Documentation Phase for a project on a rural property at Metricup, Bussell Highway, south of Busselton, south-west Western Australia.

The client desired an easy-to-build eco-friendly, simple chalet design to accommodate the sloping site. The site slopes gently from north to south with native forest areas to the north and west.

Two main living zones (living and sleeping) were expressed as separate simple ‘pods’ connected by an external timber deck to enhance the outdoor experience.

A warm, minimal aesthetic and natural material palette create a sense of calm and relaxation. An open-plan living, dining and kitchen area flows out to an extensive outdoor floating timber deck that overlooks the sloping site to the south. Some chalets incorporate a circular concrete plunge pool built into the deck. A laterite stone screen wall provides privacy.

A separate bedroom/bathroom ‘pod’ consists of two king bedrooms connected by a covered outdoor porch that opens into a shared luxury bathroom with twin showers and an exterior deck with an open-air bath. Visitors can relax under the stars with the sounds of the Australian bush.

The eco-friendly chalets feature timber framed construction, passive solar design, 7 star energy rating, solar power, rainwater harvesting & grey water recycling.

SaBella-RENDER-1.jpg
1-PLAN.jpg
2-NORTH VIEW.jpg
3-BEDROOM POD VIEW.jpg
4-SOUTH EAST VIEW.jpg
5-SOUTH VIEW.jpg